Dünyanın en güzel 37 terk edilmiş yeri

Kıyamet olsa da, terk edilmiş yerler hakkında güzel bir şey var. Saatler durdu ve görünürde…

Küçümsendi, aldatıldı, silindi: mimarinin görünmez kadınlarının…
Mimarlık Tarihinin En Büyük 11 Skandalı
Çift Danışmanlığı Yerine Bir İç Mimar deneyin
15 Mimari Projede Sonsuzluk Havuzları
Eklenme:9 Aralık 2024
Güncellenme:18 Aralık 2024
1599

15 Mimari Projede Sonsuzluk Havuzları

Denizden daha çok bizi büyüleyen çok az şey vardır. Denizin tefekkürü huzur duygusu uyandırırken, renkleri, dokuları, hareketleri ve genişliği sinir sistemimizde bilimsel olarak kanıtlanmış bir rahatlama etkisi sağlar.
Bizi denizden daha çok büyüleyen çok az şey var. Tefekkürü bir huzur duygusu uyandırırken, renkleri, dokuları, hareketleri ve genliği sinir sistemimizde bilimsel olarak kanıtlanmış bir rahatlama etkisi sağlar. Her şeyden önce, evrende ne kadar küçük olduğumuzu fark etmemizi sağlar. Denize bakan bir evin, hemen önünde bir havuz olması şöyle dursun, birçokları için bir tüketim hayali olması tesadüf değil. Sonsuzluk havuzları bu sonsuz deniz ve gökyüzü hissi ile oynar. İyi hazırlanmış bir dizi seviye ve plan aracılığıyla, herkesi suskun bırakan, havuz suyunun ufukla birleşmiş gibi görünmesini sağlayan, bir veya daha fazla kenardan taşan optik bir illüzyon yaratırlar. Ancak elinizde bir kadeh köpüklü şarapla Instagram'da fotoğrafınızı planlamadan önce, bu havuzların nasıl inşa edildiğine bir göz atalım.
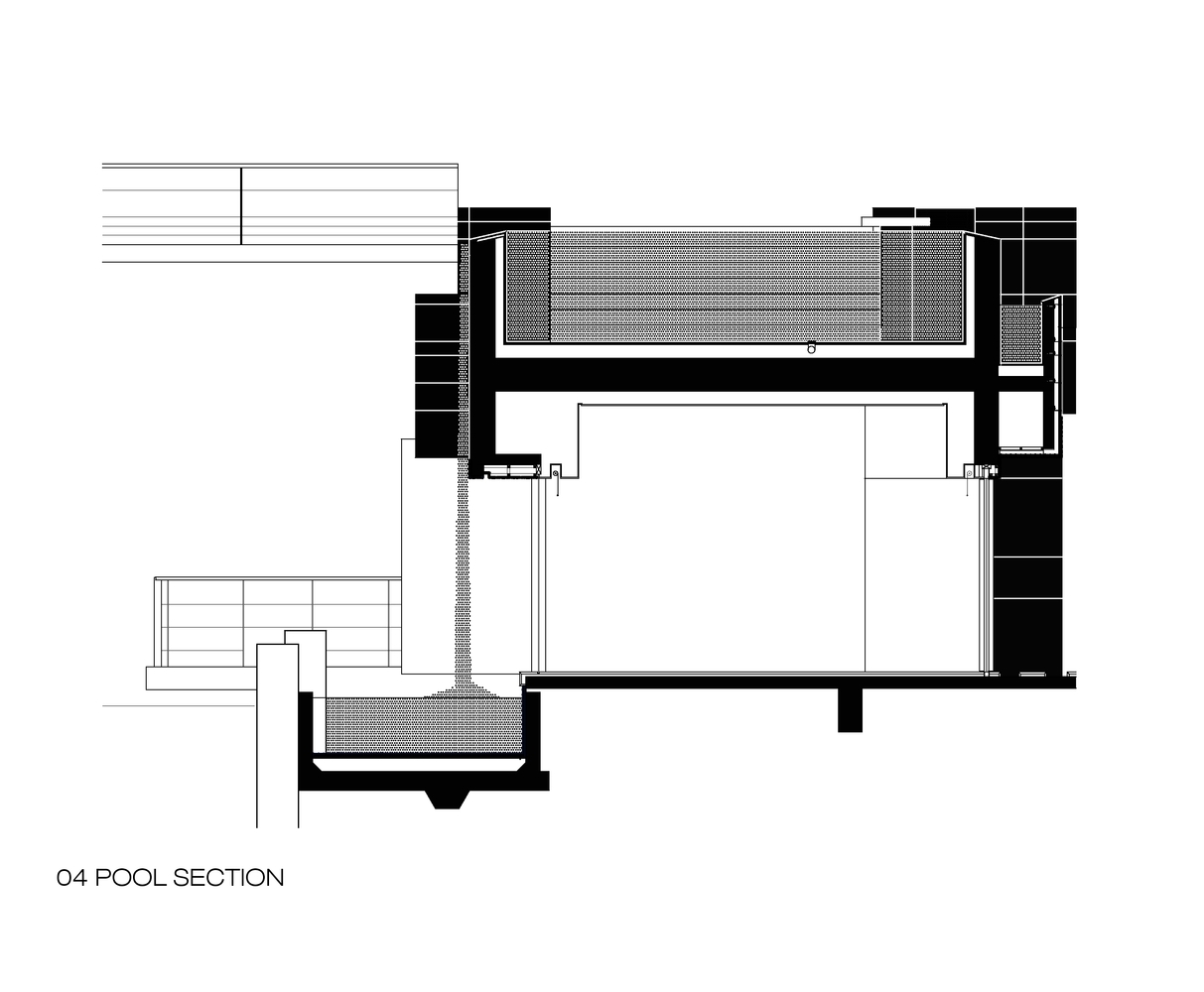
Bir sonsuzluk havuzu, su seviyesine tam olarak uyan bir veya daha fazla duvara sahiptir. Böylece, her zaman taşarlar ve su, arka kenarın hemen altında bulunan bir rezervuara düşer ve havuza geri pompalanır. Bu alt düzlemin görünmemesi önemlidir, bu nedenle suyun doğal olarak ufka aktığı hissi vardır. Aşağıdaki bölümler bu sürecin daha iyi anlaşılmasını sağlar. İkinci ayrıntıda görülen kenardaki hafif eğim, görsel efekti güçlendirerek havuz kenarını ince bir çizgi haline getirerek manzarayı kaydileştirir.
Sonsuzluk havuzunun su seviyesiyle tam olarak eşleşen bir veya daha fazla duvarı vardır. Böylece sürekli taşarlar ve su, arka kenarın hemen altında bulunan bir rezervuara düşerek tekrar havuza pompalanır. Bu alt düzlemin görünmemesi, dolayısıyla suyun doğal olarak ufka doğru aktığının hissedilmesi önemlidir. Aşağıdaki bölümler bu sürecin daha iyi anlaşılmasını sağlar. İkinci detayda görülen kenardaki hafif eğim, görsel efekti güçlendirerek havuz kenarının ince bir çizgi haline gelmesini sağlayarak manzarayı maddesellikten arındırıyor.
Bukalemun Villası
I Resort / a21 stüdyo Bu resmi kaydedin!
Aurelia - Havuz Altı Ev / SHROFFLEoN
M Residence / F:Polonyalılar Arquitetura
Fasano Las Piedras Otel / Isay Weinfeld

YORUMLAR


pr-sample23
28Oct

title

Despricton

Benzer Icerikler

Eko-ses’in En İyilerini Keşfedin
Eko-ses’i keşfet

Benzer Icerikler

Tercihleriniz kaydedildi
, , Ekoses Ekolojik Yaşam ve Mimarlık Portalı,
Sürdürülebilir tasarım, çevre dostu mimarlık, ekolojik yaşam ve teknolojiyi bir araya getiren bir platformuz. Ekolojik yaşamı benimseyen herkes için bilgi, yenilik ve ilham kaynağı olmayı hedefliyoruz. 🌿
E-Posta: ekoses_mimarlik@hotmail.com
BÜLTEN ABONELİĞİ

Bültenimize kaydolarak yeni ürünlerimizden veya kampayalarımızdan haberdar olun.